搜尋
Seven House窩居生活誌
家居 花草 收納 料理 餐桌
選單
直接觀看文章
首頁
窩居緣起
築窩回顧
窩居成家
設計裝潢
廚具設備
衞浴設備
建材五金
磁磚文化石
鋁門窗格柵
玻璃採光罩
樓梯扶手
超耐磨地板
門把五金
燈具工程
家具配件
窗簾窗飾
窩居展顏
關於家居生活
愛戀家居
遊戲花草
窩居料理
關於料理生活
廚房食材
餐廚食器
料理筆記
窩居飲食
關於飲食生活
日常餐桌
2014餐桌紀錄
2015餐桌紀錄
2016餐桌紀錄
中島食光
午茶食刻
節日餐桌
私宅派對
問答集
食材採買
食器道具
廚事料理
家事收納
家私雜貨
裝修設計
其他
聯絡我
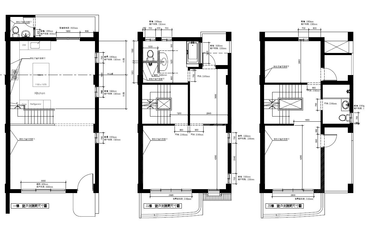
1000705-1
2016-07-28
設計裝潢
1220 × 760
客變時期設計平面圖
喜歡
正在載入...
Previous Image
Next Image
發表留言
取消回覆
Δ
搜尋:
搜尋
×
訂閱
已訂閱
Seven House窩居生活誌
我要註冊
已經有 WordPress.com 帳號了?
立即登入。
Seven House窩居生活誌
訂閱
已訂閱
註冊
登入
複製短網址
回報此內容
以閱讀器檢視
管理訂閱
收合此列
%d